Новости Жилого Комплекса
10.05.2018
Увага! Розпочато продаж нежитлових приміщень.
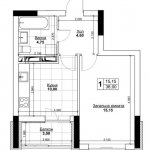
Тепер у Місто Квітів. Парковий квартал є можливість придбати площу під офіс або інші нежитлові потреби на перших поверхах будинків.
Площа ‒ від 10,68 м², вартість ‒ від 18 000 грн/м².
Розташування: будинок №4 та будинок №5.
10.05.2018
Увага! Розпочато продаж нежитлових приміщень.
Тепер у Місто Квітів. Парковий квартал є можливість придбати площу під офіс або інші нежитлові потреби на перших поверхах будинків.
Площа ‒ від 10,68 м², вартість ‒ від 18 000 грн/м².
Розташування: будинок №4 та будинок №5.


























































